William Phaup

Architect · registered 4 month(s) ago
London City of Westminster
START

Customer Reviews

Get quotes to check the reviews.

Security Checks

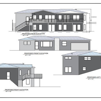
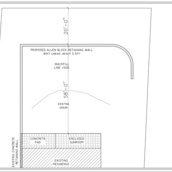
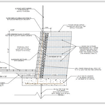
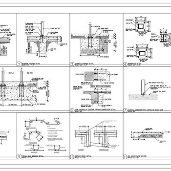
I value excellence, punctuality, and cost-effectiveness. I always strive that every project I undertake will lead to full customer satisfaction. My services include but not limited to the following: • site planning and landscaping • subdivision, mixed-use, and complex developments • design grading and drainage planning • determination of cut and fill volumes • roads and culverts design, layouts, and profiles • power, gas, and other utility layouts • temporary erosion and sediment control plans • stormwater, sewer, and water layouts and profiles • details and blow-ups • drafting and plans preparation • hydrologic or rainfall-runoff modeling • extreme event flow determination • 1D or 2D hydraulic modeling of natural streams or man-made conveyance • establishment of Base Flood Elevation (BFE), velocity, and depth at peak flows • design of Best Management Practices (BMPs) and Sustainable Urban Drainage Systems • post-development peak flow attenuation • discharge calibration and rainfall and flow data extension • surface water temperature, dissolved oxygen, and nutrients modeling • sediment yield and transport modeling I use the software AutoCAD, Civil 3D, Quantum GIS (QGIS), HY-8, Storm and Sanitary Analysis (SSA), Stormwater Management Model (EPA-SWMM), Hydraflow, MS Excel, Hydrologic Modeling System (HEC-HMS), River Analysis System (HEC-RAS), Runoff Routing (RORB), ReFH2, HydroCAD Get in touch and I will gladly serve you to my fullest.
Get quote >
Get 4 Architect Quotes